For more information regarding the value of a property, please contact us for a free consultation.
Key Details
Sold Price $65,000
Property Type Vacant Land
Listing Status Sold
Purchase Type For Sale
Subdivision Discovery Harbour
MLS Listing ID 718602
HOA Fees $12/mo
Annual Tax Amount $556
Tax Year 2024
Lot Size 0.333 Acres
Property Description
Your Dream Hawaiian Oasis Awaits and is priced to sell!
Escape to paradise with this exceptional vacant lot located in the serene and desirable Discovery Harbor Subdivision on the Big Island of Hawaii. Situated just minutes away from the stunning coastline, this property offers the perfect opportunity to build your dream home in one of Hawaii's most peaceful and scenic areas.
Property Highlights:
Lot Size: Spacious lot, providing ample room for your future home, garden, and outdoor living spaces.
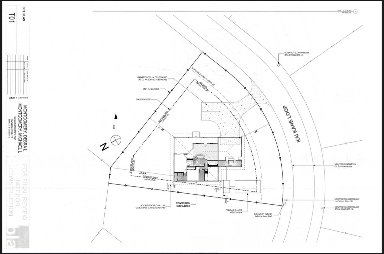
Fully Prepared for Building: The lot has been completely cleared and graded, ready for immediate construction, saving you time and effort in preparation.
Permitted House Plans Included: Comes with approved and permitted house plans, so you can begin construction with ease. The permit is valid through January 2026, ensuring plenty of time to build your ideal home.
Location: Nestled in a quiet, well-established subdivision, Discovery Harbor offers a tranquil atmosphere, perfect for those seeking privacy, while still being close to local amenities.
Scenic Views: Enjoy breathtaking views of the surrounding mountains, lush greenery, and partial ocean views, offering an ideal backdrop for relaxation and serenity.
Climate: Ideal year-round tropical climate, with cool, pleasant temperatures and a fresh breeze, making it perfect for outdoor activities.
Community Features: Well-maintained roads, accessible utilities, and a friendly, welcoming community of residents.
Located near South Point, Punalu'u Black Sand Beach, and Kaimu Beach, you'll have easy access to some of the island's most beautiful and unique natural attractions.
With close proximity to local markets, schools, and restaurants, you'll find everything you need just a short drive away.
Location
State HI
County Hawaii Island (big Island)
Community Discovery Harbour
Area Hi
Zoning A-1A
Exterior
Utilities Available Electricity Available
View Y/N No
Waterfront YN No
Building
Lot Description Cleared, Rim Lot
Sewer Septic Tank
Others
Monthly Total Fees $12
Acceptable Financing Cash, Construction Loan, Conventional
Listing Terms Cash, Construction Loan, Conventional
Special Listing Condition Fee Simple, Standard
Read Less Info
Want to know what your home might be worth? Contact us for a FREE valuation!

Our team is ready to help you sell your home for the highest possible price ASAP

Get More Information




