
0.27 Acres Lot
0.27 Acres Lot
Key Details
Property Type Vacant Land
Listing Status Active
Purchase Type For Sale
Subdivision Kilohana Kai At Waikoloa
MLS Listing ID 728677
HOA Fees $94/mo
HOA Y/N Yes
Annual Tax Amount $3,263
Tax Year 2025
Lot Size 0.273 Acres
Source Hawaii Information Service
Land Area 11904
Property Description
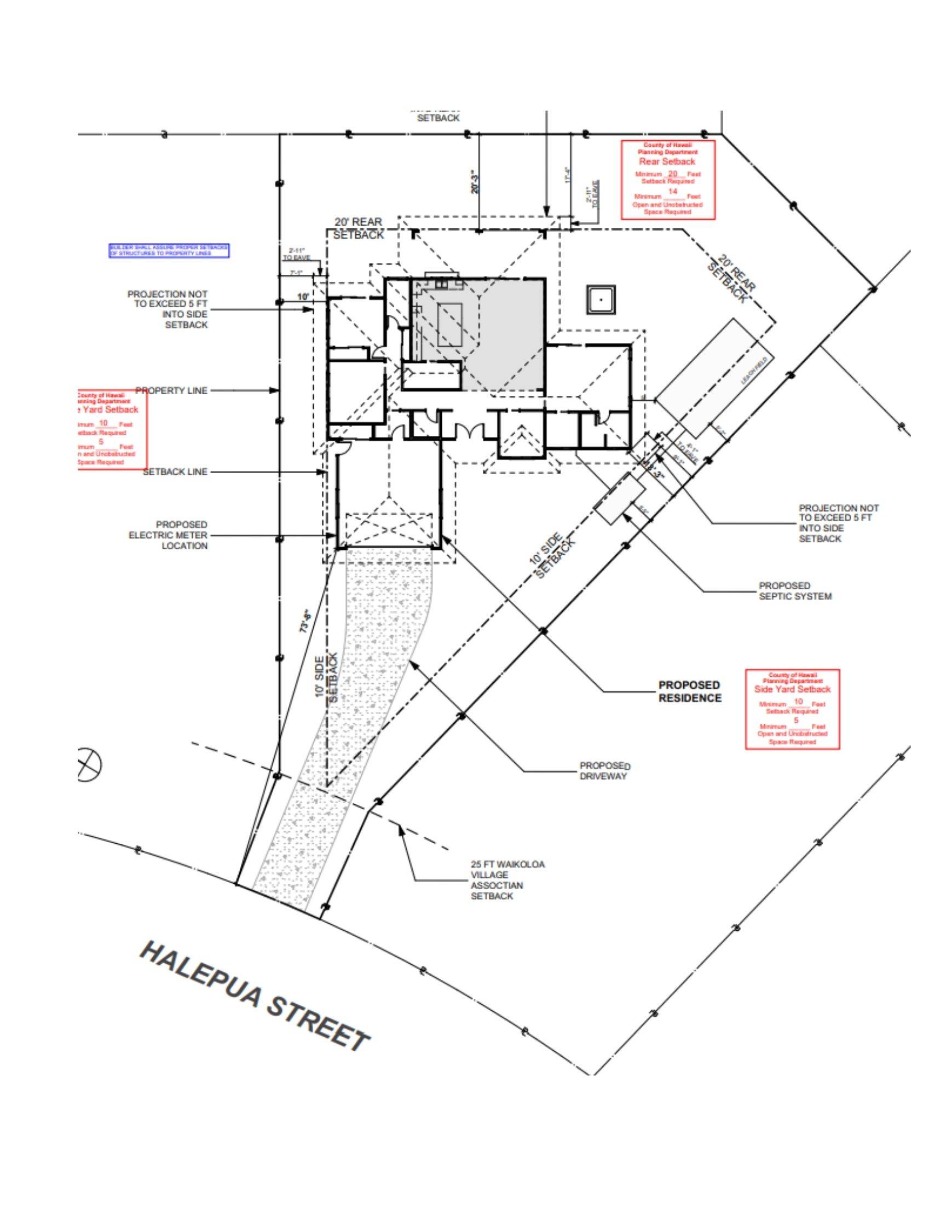
This home has 1,922 sqft of living area, plus a front and back lanai for an additional 304 sqft of indoor/outdoor living, and a large 526 sqft. 2 car garage. Not too big, not too small, but just right~
Home plans included:
- 3 Bedrooms plus a versatile Study, ideal for a Guest Room or Office
- 2 full Baths plus Powder Room
- Generous Walk in Pantry
- Dedicated indoor Laundry Room and additional Storage
Home Highlights:
- Spacious 243 sqft Primary Suite with large Walk in Closet and Ensuite Bathroom
- Vaulted ceilings with open-concept layout
- Single-level design for ease and comfort
*Permitted plans also includes a private hot tub just off the Primary Suite
This home was designed with intention—to create not just a place to live, but a place to grow, to gather, and to build a legacy. Enjoy quiet mornings with coffee or evenings filled with family and friends. Every detail reflects ease, warmth, rest, and renewal in luxury style.
Location
State HI
County Hawaii Island (big Island)
Community Kilohana Kai At Waikoloa
Area Hi
Zoning RS-10
Region South Kohala
City Region South Kohala
Exterior
Utilities Available Electricity Available, Other, Underground Utilities, Water Not Available
View Y/N No
Water Access Desc None,Other,Private
Topography Graded,Level
Garage No
Private Pool No
Land Tenure Fee Simple
Waterfront YN No
Building
Lot Description Cleared
Sewer None, Septic Tank
Others
Ownership Full
Monthly Total Fees $94
Acceptable Financing Cash, Construction Loan, Conventional, Other
Listing Terms Cash, Construction Loan, Conventional, Other
Special Listing Condition Fee Simple, Standard

Nearby School & Business
Get More Information







